Smart homes for ordinary people (how to deploy smart switches)
I have been engaged in decoration recently, and I have been studying for a long time with colleagues who are also engaged in decoration. For us, smart switches control lights + smart home appliances are enough, so I integrated various online tutorials and wrote this article using my own house as an example for your reference.
This article mainly talks about the layout of smart switches. Smart home appliances are very simple. Now home appliances can basically be connected to each other. Otherwise, you can also buy a smart socket to control. Just remember to leave a socket for electric curtains and other things.
1. Basic principles of smart switches
Principle: dual control to single control + wireless switch!
Mechanical switches are dual-control: For example, my master bedroom is dual-control according to the traditional wiring method. The main light in the master bedroom has a switch at the entrance and at the bedside.

The smart switch is a single control: install the smart switch, cancel the wire from the main light to the bedside switch + cancel the bedside mechanical switch + leave a neutral wire for the door switch, install a smart switch at the door, and place a wireless switch at the bedside.

2. A bit more complicated
According to the traditional method, in the public area, the decoration company arranged for me to have dual controls for the entrance downlights and the main lights in the living room, and single controls for the others.
According to the basic principle, I want to do two things:
1. Change the dual-control entry downlights and living room main lights to single-control.
2. Simplify the distribution of switch panels and gather the lights in the living room and dining room together. So I put all the five light switches in the living room, dining room, and shoe cabinet in one place opposite the shoe cabinet, arranged two smart switches with 3 buttons and 2 buttons, and bought a wireless switch. The smart switches for balcony lights and entry downlights are still placed near the lights.
In this case, just buy two single-button, one double-button, and one three-button smart switch + 1 wireless switch.
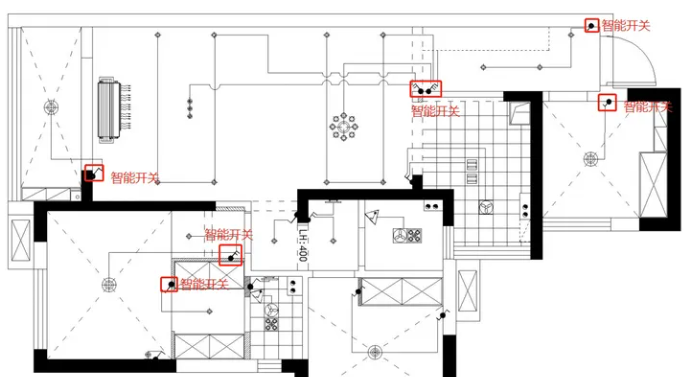
3. Regional distribution
Not every switch panel is smart. I personally think it would be simpler to realize smartness in areas with more lights and switches. Some simple single-control areas do not need to be smart, such as kitchens and toilets. This depends on personal needs.
Some of the lights in the entrance, dining room, living room, balcony, multi-functional room, and master bedroom are smart switches. The kitchen, public bathroom dry area and wet area, parent room, master bedroom bedside chandelier, and master bedroom bathroom are ordinary mechanical switches.
Purchase smart switches for the whole house: 4 single buttons, 2 double buttons, and 1 triple button.

Question 1: Is it possible to retain the dual control circuit and the switch is an intelligent switch + a mechanical switch?
Answer: No, you cannot have smart switches and mechanical switches on the same line at the same time. The smart switch needs to be connected to the neutral wire and live wire for power supply, and the mechanical switch will cause the smart switch to lose power.
Question 2: How to reserve the neutral line?
Answer: For a device to be energized, it needs neutral wire + live wire for power supply. The lamp is connected to the neutral wire, and the mechanical switch is connected to the live wire. If the blank is simpler, you can directly pull a neutral wire from the switch. If it is hardcover, it will be complicated. It depends on the actual situation. You can connect the neutral wire from lights, sockets, etc. to the switch.